Les chantiers se suivent et se ressemblent, encore un très beau projet.
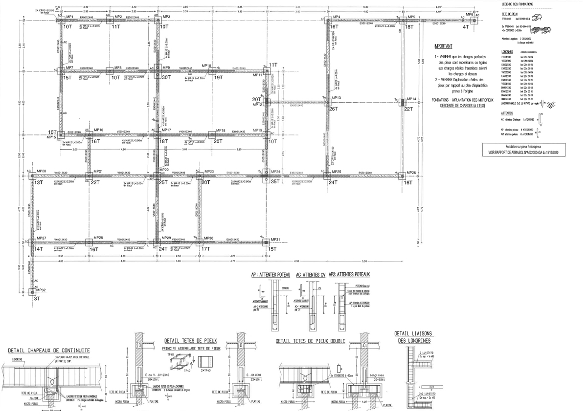
L’étude de sol nous oblige à fonder la maison sur pieux à cause du terrain argileux et présence de source, réalisation d’une étude béton.
Voici le début d’un beau chantier technique.




